charles humbert

lieu : Plainpalais Jonction, Genève
client : privé
date : 2019 –
type : transformation et rénovation, surélévation
programme : habitation
collaborateur : Romain Deley, Joshua Bautista
statut : chantier en cours
n° projet : 047
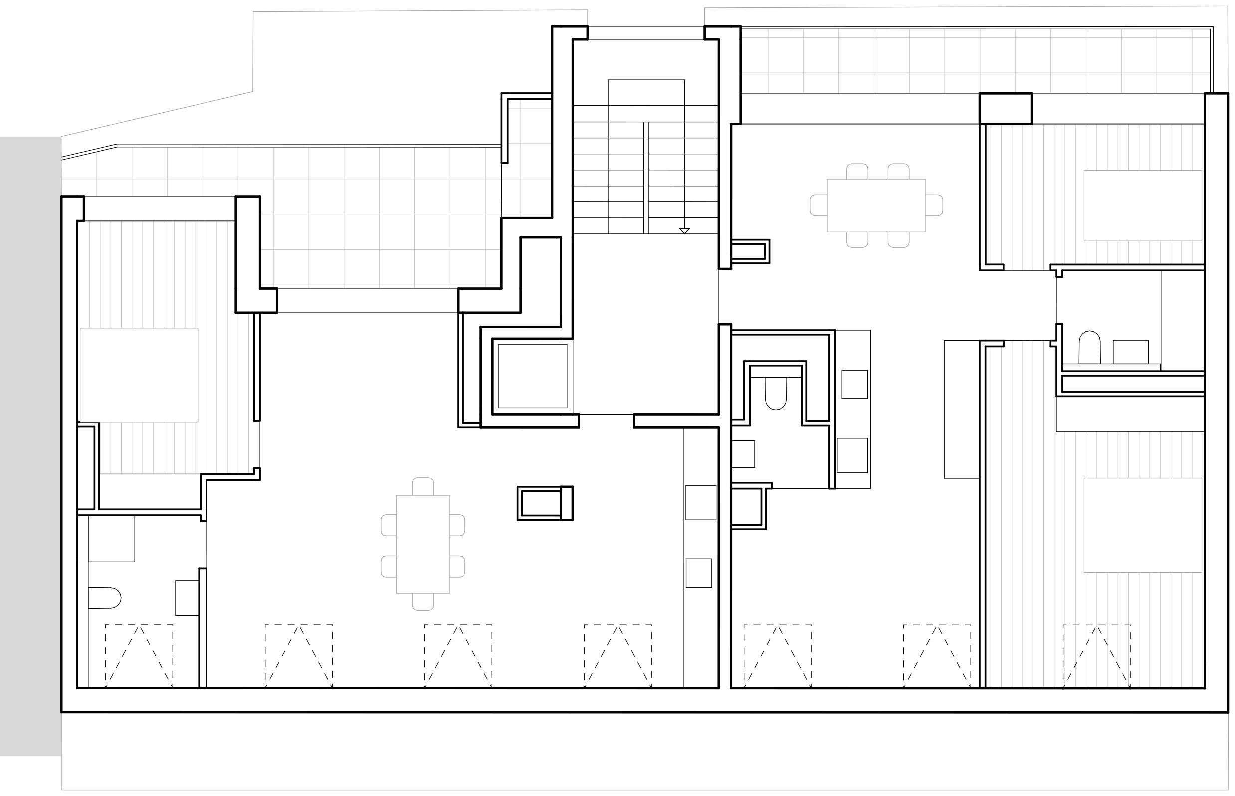
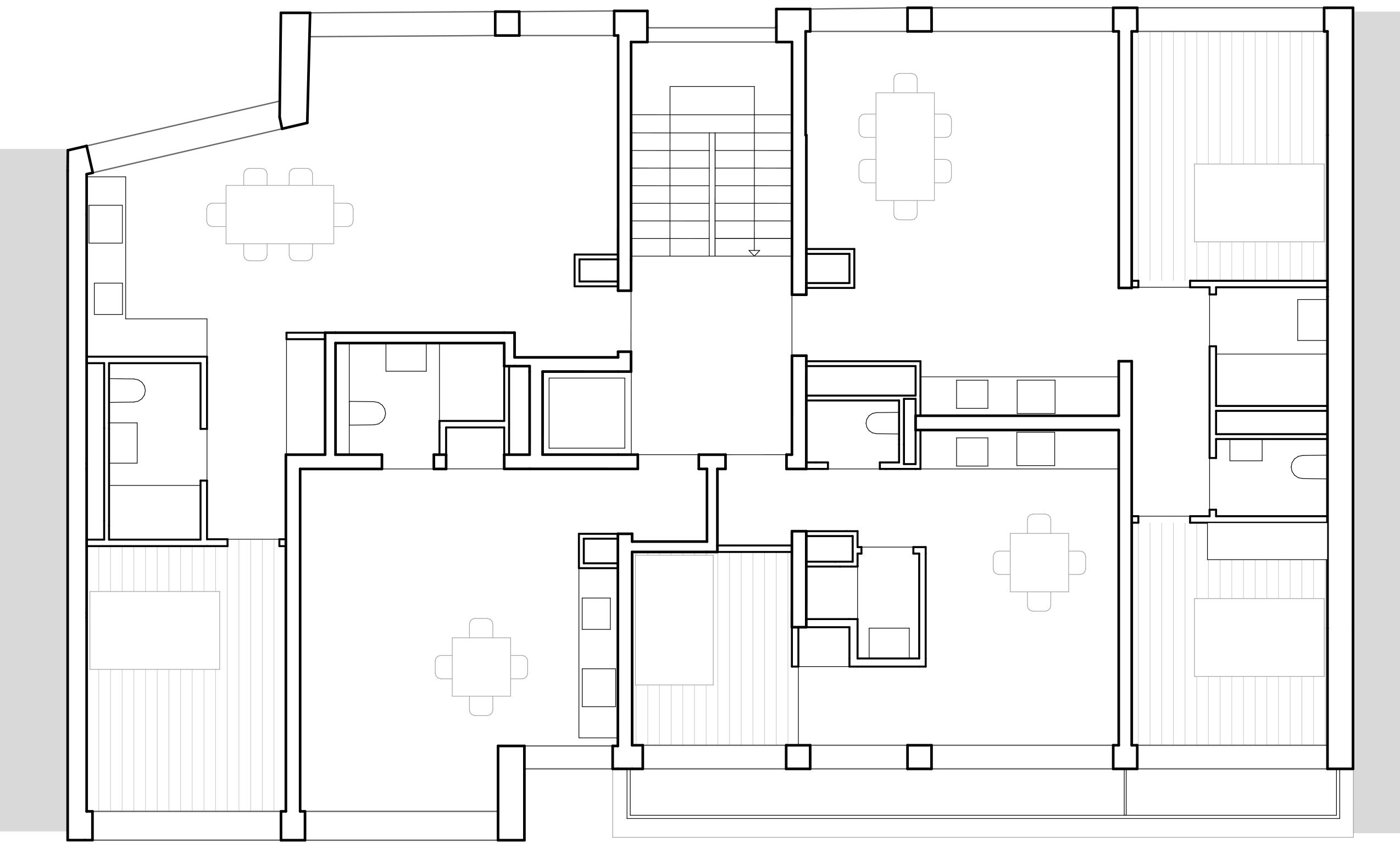
Cet immeuble des années 60 intègre un îlot fermé de forme triangulaire et est mitoyen à un ensemble d’immeubles protégés. Le projet consiste à créer 6 nouveaux appartements traversants, lumineux et généreux, par la transformation, l’agrandissement du 5ème étage et l’ajout d’un 6ème étage en lieu et place de l’ancienne toiture à 2 pans inoccupée.
Ceci en valorisant la composition de la façade existante composée de 2 volumes en alignement sur la rue et 1 en retrait, en prolongeant la cage d’escalier vitrée présente côté cour, et en s’alignant volumétriquement avec le volume de toiture de l’îlot adjacent protégé. De nouveaux prolongements extérieurs sont également créés, au 5ème et au 6ème étage.








